header

 

Our Design Process

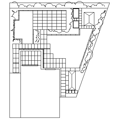
If you are planning a large landscaping project, a good garden design can save you time and money, allowing you to view your dream garden on paper before you commit to the final build.

Our garden design service includes full consultations with our award-winning garden designer, who will produce a bespoke garden design tailored to the specific needs of your household.

Our design package includes a scaled drawing, specifications, planting plans and a three dimensional representation of your finished garden.


Copyright © 2009-2020 D Ferguson Landscaping Design

Site By TWD Website Design